
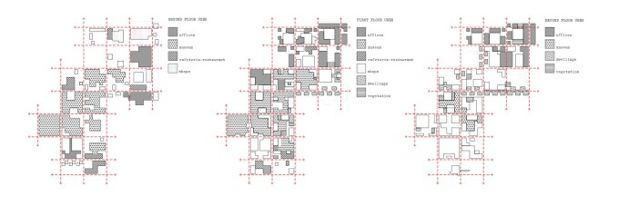
«We owe the term mat-building to Alison Smithson. Her article “How to recognise and read mat-building. Mainstream architecture as it has developed towards the mat-building” published in the Architectural Design issue of September 1974, included a definition of this type of building and an extensive list of works and projects from the 1950s to the 1970s related to it. Several studies have recently revived the interest in this topic. As in the case of the buildings themselves, the appeal of re-reading said article lies in its open and flexible theoretical framing. The British author reviewed the items discussed at Team 10 meetings, pointed out that mat-buildings were not dependent on a specific architectural language, and identified certain contemporary works as offshoots of this phenomenon. “Mainstream mat-building became visible, however, with the completion of the Berlin Free University”, she said – but what are the characteristic features of a mat-building? This paper aims to answer this question by analysing five case studies: four projects mentioned by Alison Smithson and another in our own geographical proximity. Our research, which gave rise to an exhibition, explains and provides clear examples of the main mat-building strategies. The basic hypothesis focussed on three compositional principles: metrics, programme and place.»
“The Strategies of Mat-building,” with Débora Domingo Calabuig and Ana Ábalos Ramos. The Architectural Review 1398 (2013): 83-81.
